Italiano
89.000 €

AMPIO BILOCALE/TRILOCALE TRAVI A VISTA STEZZANO

3 locali in vendita • Stezzano - via Piave
OTTIMA OCCAIONE!!! SIA COME ABITAZIONE CHE COME INVESTIMENTO DA AFFITTARE O COME BED AN BREAKFAST!
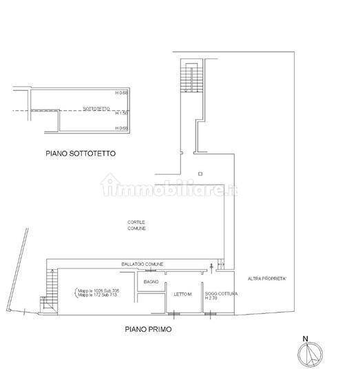
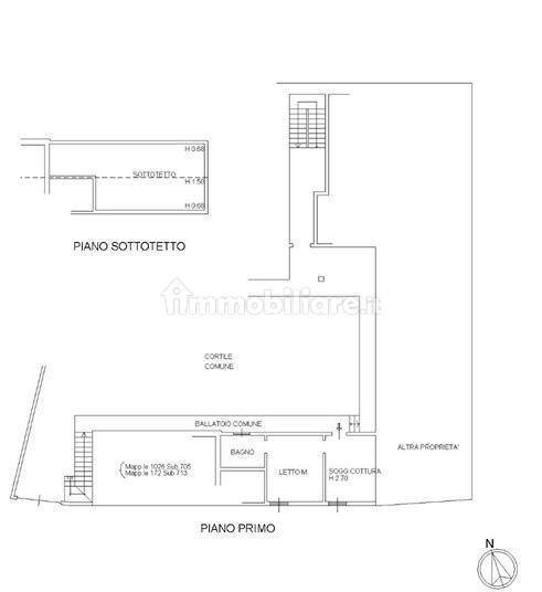
In centro Stezzano, servito da tutto, in corte storica tenuta in ottime condizioni, bellissimo appartamento posto all'ULTIMO PIANO , composto da ingresso, soggiorno con cucina a vista, camera da letto, bagno finestrato, balcone di passaggio(ma essendo l'immobile posizionato in fondo, si puo' stendere), oltre a una stanza finestrata collegata con scala interna e parte di sottotetto.
L'immobile si presenta con porta blindata, doppi vetri,pavimenti in ceramica,persiane in legno,TRAVI A VISTA
Nel prezzo e' compresa la cucina fatta su misura.
OTTIMO PREZZO! DA VEDERE SUBITO!
Caratteristiche principali
Codice
V003433
Città
Stezzano
Categoria
3 locali
Prezzo
89.000 €
Spese condominiali
240 € / anno
Locali
3
Camere
2
Bagni
1
Mq
70
Piano
1
Classe energetica
G
3,51
Stato Immobile
Ristrutturato
Grado
Signorile
Lati Liberi
2
Tipo Soggiorno
Soggiorno
Tipo Cucina
A Vista
Riscaldamento
Autonomo
Tipo Impianto
Radiatori
Infissi
Legno Doppio Vetro
Pavim. Giorno
Ceramica
Pavim. Notte
Ceramica
Pavim. Cucina
Ceramica
Pavim. Bagno
Ceramica

Accessori: Doppi Vetri, Porta Blindata

Mappa
via Piave , Stezzano (BG)
Condividi su
Cookie preference