Italiano
849.000 €

STABILE CIELO TERRA CON GIARDINO P.ZA S.ANNA

Stabile / Palazzo in vendita • Bergamo (Centrale)
Vicinanze Piazza S.Anna stabile cielo/terra tutto da riattare.
Ideale per imprese e per recupero 110 % e ideale per fare B&B o Albergo
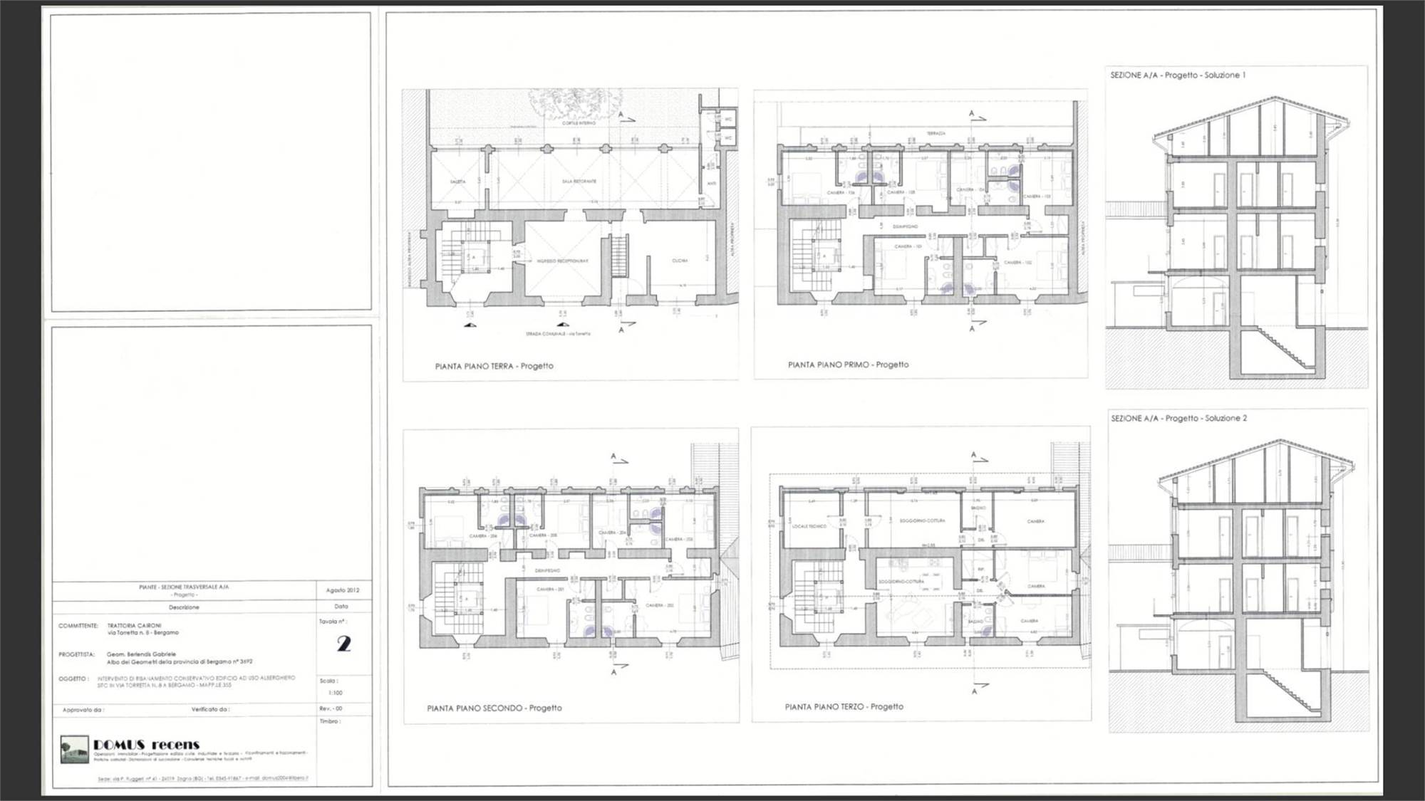
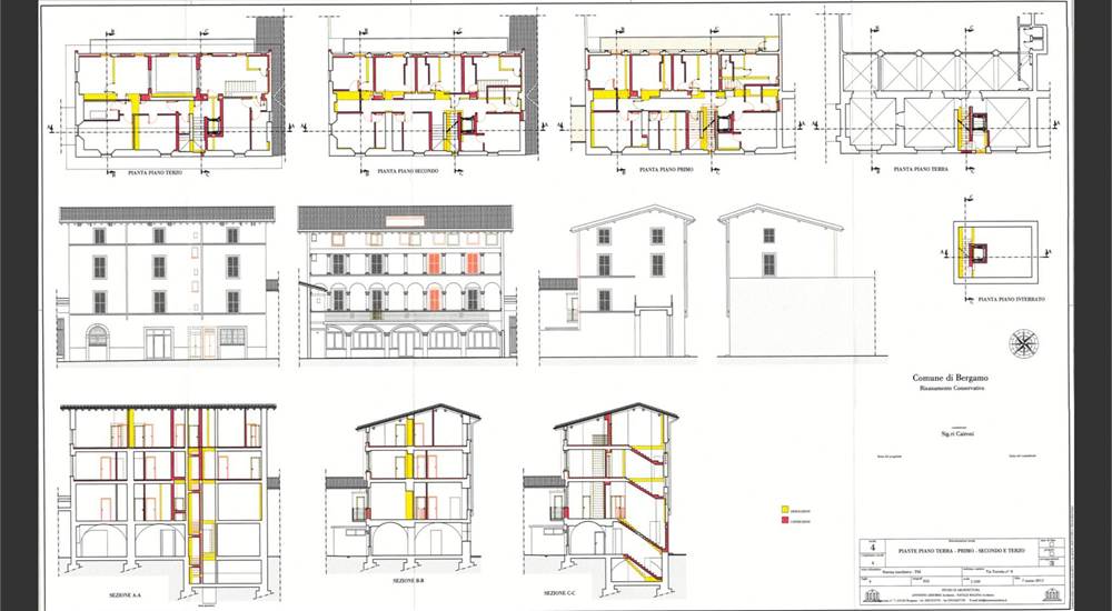
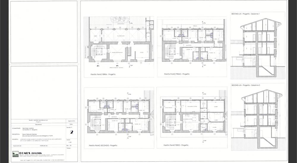
Borgo storico centrale di Borgo Palazzo, palazzina cielo/terra di 4 piani fuori terra per un totale di 850 mq. oltre area interna di 600 mq.
Soluzione completamente da ristrutturare. Il progetto di recupero studiato prevede la possibilità di realizzare 16 camere e 14 bagni con la realizzazione dell'ascensore interno.
Ottima soluzione in zona centrale e strategica di Bergamo.
Caratteristiche principali
Codice
V000905
Città
Bergamo (Centrale)
Categoria
Stabile / Palazzo
Prezzo
849.000 €
Locali
7
Mq
800
Mq Giardino
600
Piano
Terra
Classe energetica
G
234 kWh/m²a
Stato Immobile
Da Ristrutturare
Lati Liberi
2
Giardino
Privato
Riscaldamento
Autonomo
Tipo Impianto
Radiatori
Pavim. Cucina
Ceramica
Pavim. Bagno
Ceramica
Condividi su
Cookie preference